Tujuan WPS
Pada saat fabrikasi produk industri yang membutuhkan pekerjaan pengelasan seperti pembuatan ketel uap (boiler), bejana tekan (pressure vessel), struktur baja (steel structure), jembatan (bridge), pipa saluran (pipelines), dan lain-lain, setidaknya ada 3 faktor yang harus diperhatikan yaitu keamanan (safety), ekonomi (economy), dan keterulangan (repeatability).
Faktor keamanan menjadi unsur utama yang harus dipenuhi, karena proses pengelasan bisa saja membahayakan welder/ lingkungan, serta hasil lasan yang buruk dapat menyebabkan kecelakaan bahkan menimbulkan korban jiwa, sebagaimana ditunjukkan gambar 1.
Faktor yang kedua yaitu ekonomi, jika tidak dimanage dengan baik, maka proses fabrikasi bisa menyebabkan terbuangnya material, proses pengelasan tidak efisien sehingga biaya yang ditimbulkan menjadi besar. Faktor yang ketiga adalah keterulangan (repeatability), maksudnya untuk menghasilkan produk lasan sesuai desain tertentu harus bisa diulangi lagi oleh welder yang lain setiap waktu. Untuk mencapai efisiensi fabrikasi produk berdasarkan ketiga faktor di atas, maka diperlukan prosedur pengelasan yang spesifik atau disebut juga welding procedure specification (WPS).

Definisi WPS
Berdasarkan The American Society of Mechanical Engineers (ASME) Section IX Boiler and Pressure Vessel Code tentang standar kualifikasi welding, brazing, and fusing, WPS atau spesifikasi prosedur las merupakan prosedur tertulis tentang pengelasan yang sudah terkualifikasi untuk memberikan arahan dalam membuat pengelasan produksi (production weld) sesuai dengan persyaratan dari standar yang dipakai. Jika diibaratkan, WPS dalam fabrikasi pengelasan seperti resep masakan yang telah teruji untuk menghasilkan masakan dengan cita rasa tertentu.
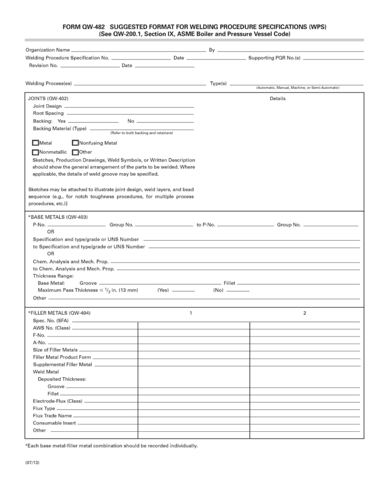
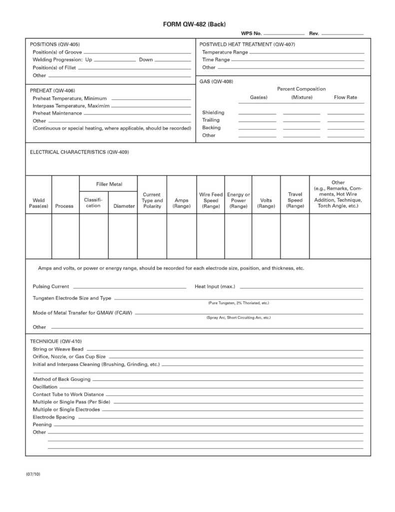
Salah satu format WPS yang direkomendasikan dari ASME, dapat dilihat pada QW-482 seperti pada Gambar 2 (halaman pertama) dan Gambar 3 (halaman kedua).


Variabel dalam WPS
Di dalam dokumen WPS, terdapat tiga variabel yang disebut essential variable, supplementary essential variable (jika diperlukan), dan non-essential variable (Kholis, 2012). Essential variable adalah semua variabel yang apabila berubah akan berpengaruh terhadap mechanical properties dari hasil las dan membutuhkan kualifikasi ulang WPS (QW-251.2).
Supplementary essential variable akan menjadi essential variable apabila proses pengelasan mensyaratkan notch-toughness test atau impact test. Sedangkan nonessential variable adalah semua variabel yang apabila berubah dapat dibuat dalam WPS tanpa kualifikasi ulang (QW-251.3).
Halaman pertama di bagian header memuat nama perusahaan, nomor dan tanggal WPS, nomor supporting PQR, kolom revisi dan tanggal, proses las beserta tipenya. Di bagian isi terdapat informasi parameter pengelasan meliputi jenis sambungan/joints (QW-402), logam dasar / base metal (QW-403), logam pengisi / filler metals (QW-404).
Pada halaman kedua terdapat informasi parameter pengelasan yaitu posisi pengelasan / positions (QW-405), pemanasan mula / preheat (QW- 406), perlakukan panas pasca las / postweld heat treatment (QW- 407), Gas (QW-408), parameter kelistrikan / electrical characteristics (QW-409) dan Technique (QW-410).
Kualifikasi WPS
Pada umumnya, WPS dibuat oleh fabrikator / pemanufaktur pada saat mendapatkan proyek, misalnya pembuatan bejana tekan (pressure vessel). WPS yang sudah dibuat tersebut dan belum terkualifikasi selanjutnya dilakukan kualifikasi menggunakan Procedure Qualification Record (PQR) atau rekaman kualifikasi prosedur. Untuk kualifikasi WPS diperlukan test coupon yang dilas oleh seorang welder dengan mengikuti variabel yang tercantum dalam WPS dan dituangkan dalam PQR.
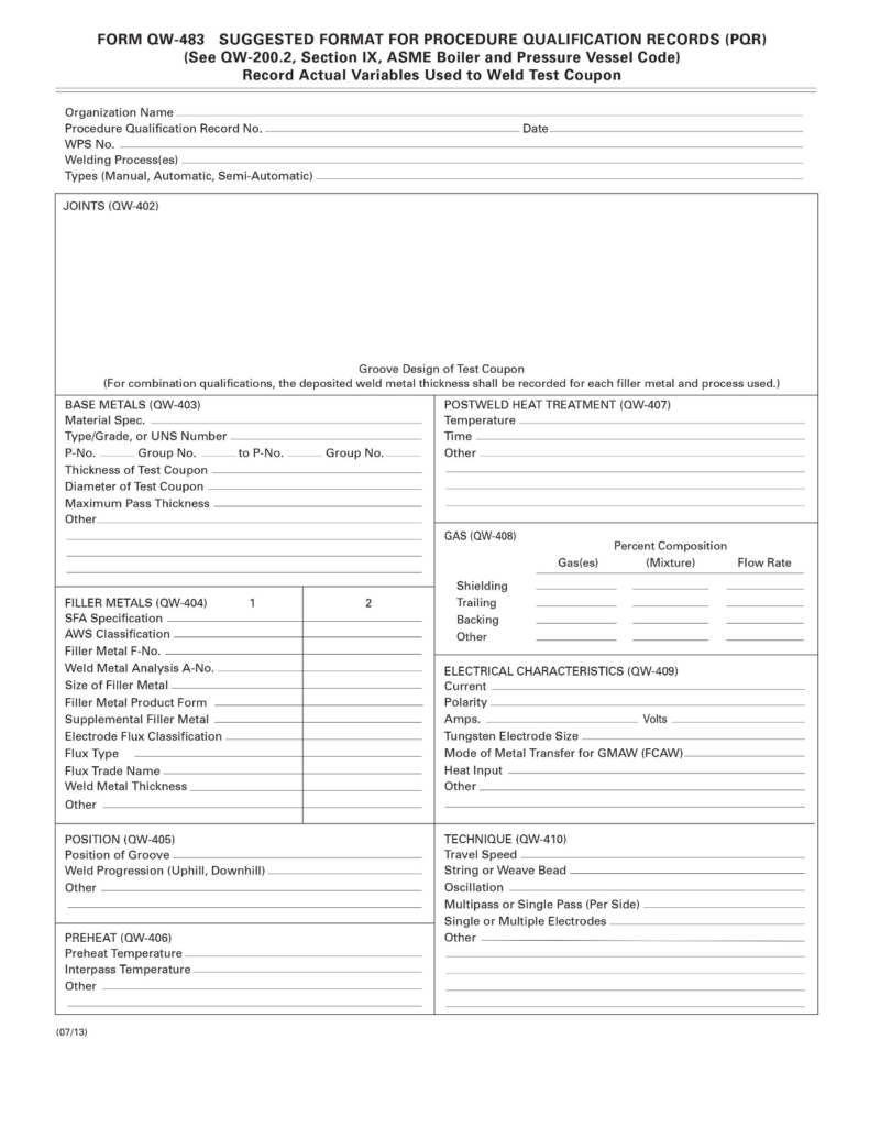
Jadi, PQR adalah rekaman dari data pengelasan yang digunakan untuk mengelas test coupon yang digunakan dalam kualifikasi WPS. PQR juga berisi hasil pengetesan dari spesimen yang diuji. Format PQR yang direkomendasikan ASME Section IX ditunjukkan pada Gambar 4 dan Gambar 5.
Pada bagian header PQR terdapat informasi nama perusahaan, nomor dan PQR, nomor WPS, proses dan tipe las. Untuk bagian isi terdapat informasi parameter pengelasan yaitu Joints (QW-402), Base Metals (QW-403), Filler Metals (QW-404), Position (QW-405), Preheat (QW-406), Postweld Heat Treatment (QW-407), Gas (QW-408), Electrical Characteristics (QW-409) dan Technique (QW-410).
Pada halaman kedua terdapat informasi yang membedakan dengan WPS yaitu hasil-hasil pengujian mekanis aktual terhadap semua specimen dari test coupon seperti uji tarik / tensile test (QW-150), uji tekuk / guided-bend tests (QW-160), uji ketangguhan / toughness tests (QW- 170), uji filet las / fillet-weld test (QW-180) dan test lainnya jika diperlukan. Kemudian dibagian akhir PQR terdapat informasi nama welder / operator, lokasi pengujian dan kolom tanda tangan untuk manufaktur dan yang mengkualifikasi, misalnya Ditjen Migas atau kementrian terkait.


(hlm kedua)
WPS dapat diaplikasikan pada produk atau disebut terkualifikasi jika sudah mempunyai PQR yang lolos sesuai standard/ code yang diacu, namun jika belum ada PQR maka WPS tersebut tidak boleh diaplikasikan ke produk karena WPS tersebut belum terkualifikasi. Jika Anda membutuhkan WPS atau ingin berkonsultasi tentang prosedur Las Anda dapat mengkontak kami melalui WA/tlpn ke 082211155700.
Rererensi:
- Kholis, I. (2012). Kualifikasi Welding Procedure Specification (WPS) dan Juru Las (Welder) berdasarkan ASME SECTION IX di Industri Migas. Swara Patra, 2(3).
- ASME Boiler and Pressure Vessel Code Section IX – Welding and Brazing Qualification, 2019.
- https://www.advancintegrity.com/